Правильный выбор топлива критически важен для обеспечения надежной работы двигателей JCB и продления их срока службы. В данном руководстве рассмотрены требования к топливу, его свойства, возможные загрязнители и специфические условия использования биодизеля.
1. Допустимые и недопустимые типы топлива
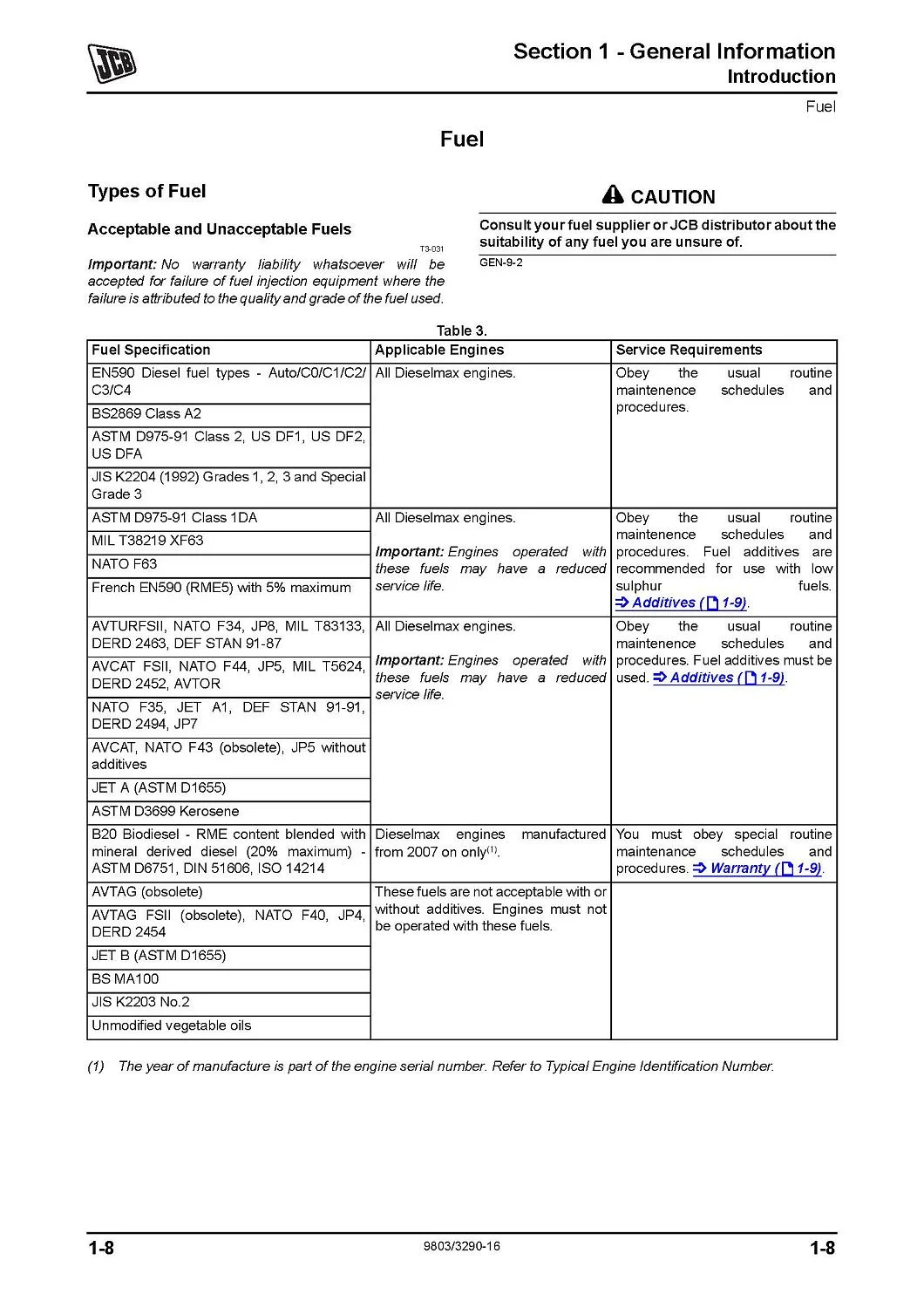
Для двигателей JCB Dieselmax разрешено использовать следующие виды топлива:
-
Дизельное топливо :
- EN590 (автомобильные классы C0/C1/C2/C3/C4).
- BS2869 Class A2.
- ASTM D975-91 Class 2, US DF1, US DF2, US DFA.
- JIS K2204 (1992) Grades 1, 2, 3 и Special Grade 3.
-
Керосин :
- ASTM D3699.
-
Биодизель :
- B20 (смесь биодизеля RME с минеральным дизелем до 20%, соответствующая стандартам ASTM D6751, DIN 51606, ISO 14214).
Недопустимые типы топлива :
- AVTAG, AVTAG FSII, JET B, BS MA100, JIS K2203 No.2, незамещенные растительные масла.
Важно : Использование неподходящего топлива может привести к выходу из строя системы впрыска, что не покрывается гарантией JCB. Перед применением нестандартных видов топлива проконсультируйтесь с поставщиком или дилером JCB.
2. Содержание серы в топливе
Высокое содержание серы вызывает коррозию и износ деталей двигателя. Для двигателей JCB рекомендуются топлива с низким содержанием серы.
Таблица 1. Рекомендуемая частота замены масла в зависимости от содержания серы
|
Содержание серы (%) |
Частота замены масла |
|---|---|
|
Менее 0,5 |
Обычная (номинальная) |
|
0,5–1,0 |
0,75 от номинальной |
|
Более 1,0 |
0,50 от номинальной |
Предупреждение : Комбинация воды и серы в топливе усиливает коррозию. Убедитесь, что топливная система полностью сухая при использовании высокосернистых топлив.
3. Влияние загрязнителей топлива
Загрязнители (пыль, вода, воск) могут вызвать серьезные повреждения системы впрыска:
- Пыль : Абразивные частицы ускоряют износ насосов и форсунок.
- Вода : Проникает в топливные баки через плохое хранение или некачественное топливо. Даже небольшие количества воды вызывают коррозию и заедание механизмов. Ежедневно осушайте топливный фильтр.
- Воск : При низких температурах воск осаждается, блокируя топливные каналы. Для работы в холодных условиях используйте специальные зимние топлива с пониженной вязкостью.
4. Добавки в топливо
Для топлив с низким содержанием серы или керосина применяются добавки, повышающие смазывающие свойства:
- Примеры добавок :
- Elf 2S 1750 (для индийского керосина SKO, 0,1–0,15%).
- Lubrizol 539N (для шведского низкосернистого топлива, 0,025%).
- Paradyne 7505 (Infineum, 0,05%).
Важно : Добавки должны применяться только по рекомендации поставщика топлива. Их некорректное использование может привести к отказам, неcovered гарантией.
5. Требования к обслуживанию при использовании биодизеля B20
- Масло : Используйте масло класса CH4.
- Хранение : Не оставляйте биодизель в баке длительное время — доливайте ежедневно.
- Фильтрация : Частота замены топливных фильтров — минимум половина номинального срока.
- Очистка : Ежедневно осушайте топливный предфильтр.
- Совместимость : Биодизель допустимо использовать только в двигателях JCB, выпущенных после января 2007 года (серийные номера с "07" в конце).
Гарантийные условия : Нарушение требований обслуживания при использовании биодизеля может привести к отказу в гарантийном ремонте.
Заключение
Соблюдение указанных рекомендаций обеспечит бесперебойную работу двигателя JCB и продлит его срок службы. При возникновении вопросов по выбору топлива или обслуживанию обращайтесь к авторизованным дилерам или производителю.


